
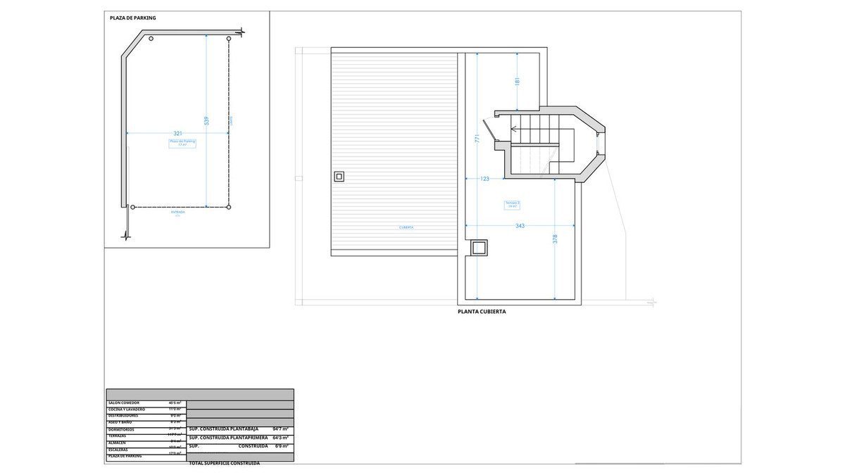
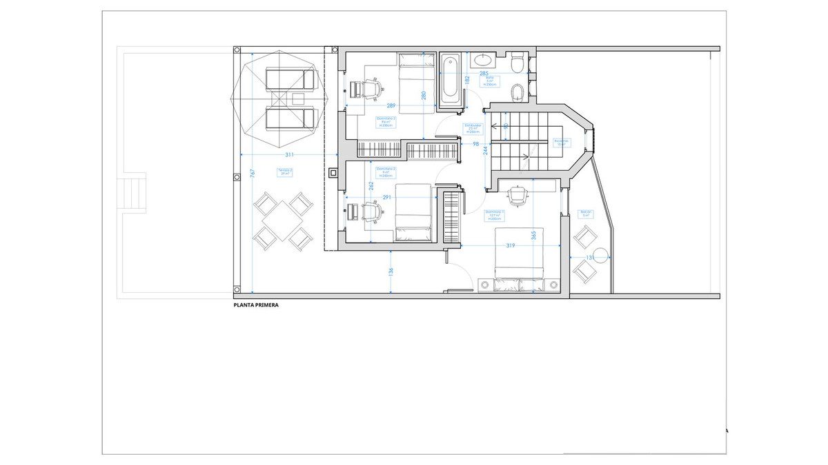
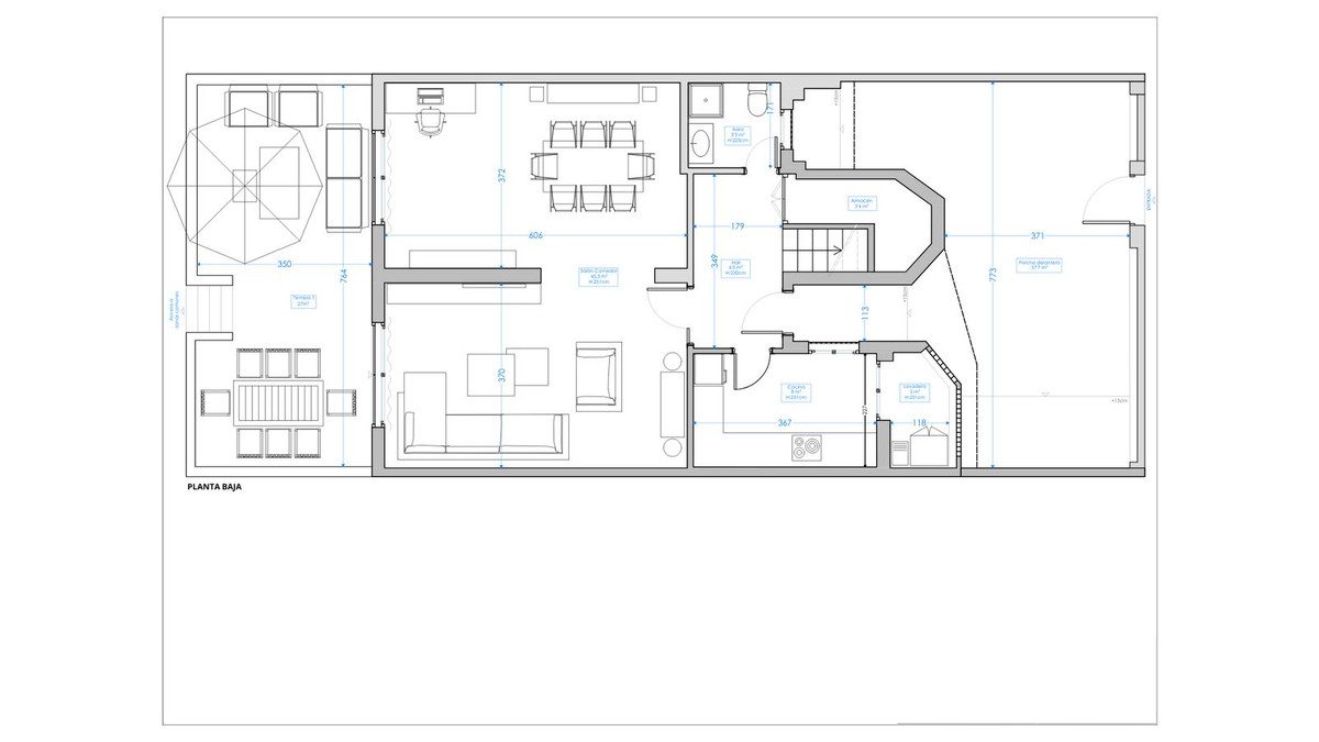
Bienvenidos a esta vivienda adosada con gran potencial en Guadalmar, situada en una urbanización cerrada a pocos minutos a pie del mar, zonas peatonales y servicios. Una propiedad con espacios exteriores generosos y una ubicación que marca la diferencia.Con aproximadamente 190 m² construidos, la vivienda se distribuye en varias plantas y cuenta con patio delantero y patio trasero, de unos 30 m² cada uno, lo que permite disfrutar de espacios exteriores privados durante todo el año y la hace especialmente adecuada para familias o propietarios con mascotas.La vivienda requiere reforma, lo que la convierte en una oportunidad para actualizarla a gusto del comprador y revalorizarla en una de las zonas residenciales más consolidadas de Málaga.Distribución funcional:Planta principal: zona de acceso con salón-comedor, cocina independiente, aseo y salida directa al patio trasero, ideal para crear una zona de estar exterior.Planta superior: 3 dormitorios y 2 baños, con buena distribución y una terraza de 27 m² posibilidad de optimizar espaciosPosibilidad de ampliación: existe opción de crear un dormitorio adicional en planta baja, aumentando la versatilidad de la vivienda.Urbanización y extras:Urbanización cerrada con piscina comunitaria.2 plazas de aparcamiento en la puerta de la vivienda, más una plaza adicional en parking comunitario.Entorno tranquilo, residencial y bien comunicado, con vecinos todo el año.Se trata de una propiedad ideal tanto para residencia habitual como para proyecto de reforma con revalorización, en una ubicación donde las viviendas reformadas alcanzan valores sensiblemente superiores.~

A veces es buena idea obtener un informe del valor de tu casa incluso si no planeas venderla.
Tel: +34 951 82 01 12