
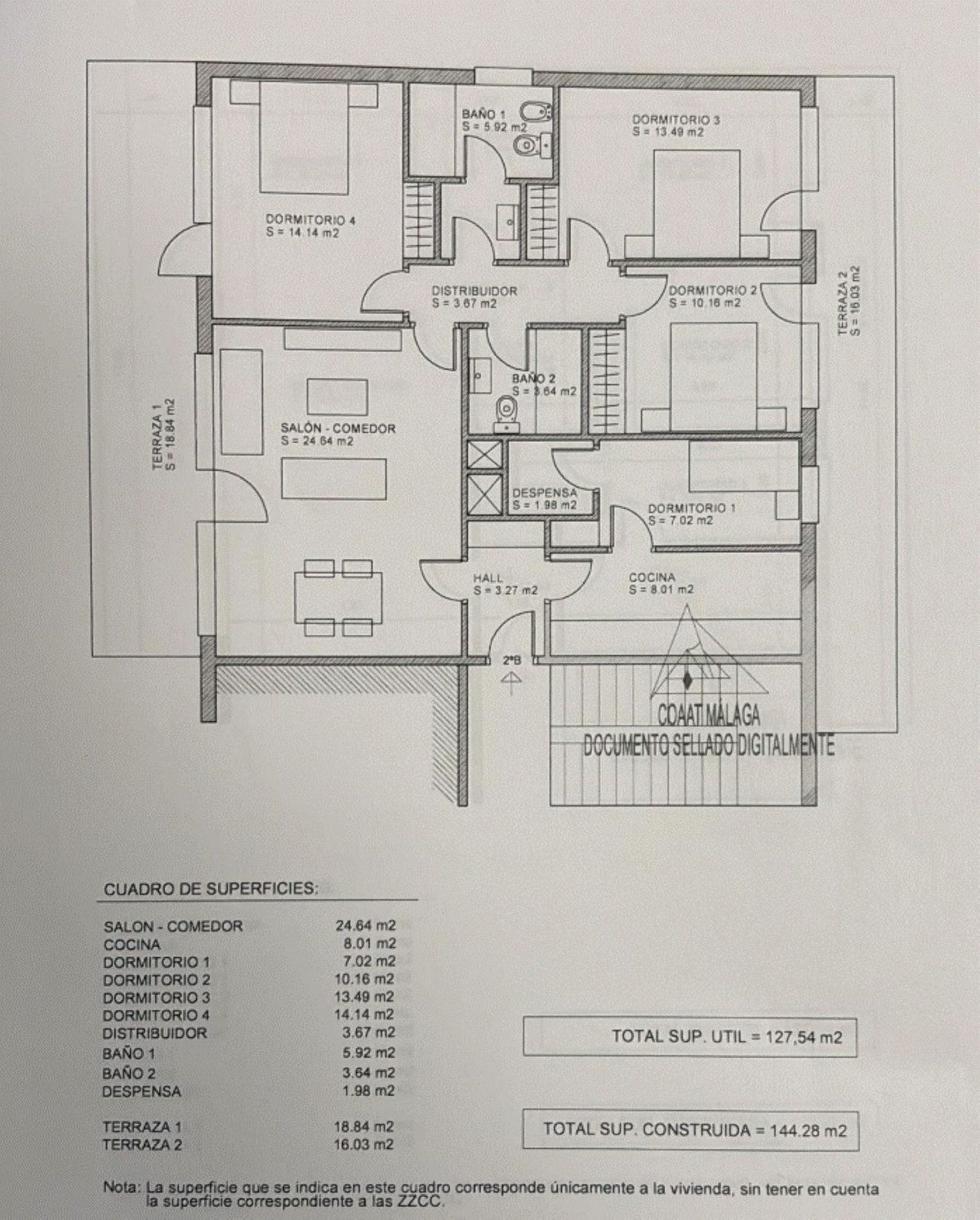
Amplio apartamento de cuatro dormitorios con terraza y trastero en Montemar/La Carihuela.Situado en la 2ª planta de uno de los bloques bajos del popular urbanización Eurosol, este espacioso apartamento ofrece 138 m² de superficie util, incluida una amplia terraza con vistas a los cuidados jardines comunitarios.La distribución cuenta con tres dormitorios dobles, un dormitorio individual y 2,5 baños, lo que proporciona espacio más que suficiente para vivir en familia o recibir invitados. Desde el salón se accede directamente a la terraza, un lugar ideal para disfrutar de la tranquilidad y las vistas al jardín.Aunque la vivienda se beneficiaría de una modernización, su fantástica ubicación la convierte en una oportunidad destacada: a solo 3 minutos a pie de la playa, a 5 minutos de dos supermercados y con fácil acceso al animado paseo marítimo de La Carihuela y a todos los servicios de Montemar. Por su tamaño, distribución y cercanía al mar, este apartamento también ofrece un excelente potencial de alquiler durante todo el año.Características principales:* Edificio Eurosol, Montemar/La Carihuela – ubicación costera privilegiada* 2ª planta (sin ascensor) • 138 m² util incluyendo la terraza* 3 dormitorios dobles + 1 dormitorio individual • 2,5 baños* Salón y terraza con vistas a los jardines comunitarios* A 3 minutos a pie de la playa • A 5 minutos de supermercados* Gran potencial de reforma y de alquiler anual~

A veces es buena idea obtener un informe del valor de tu casa incluso si no planeas venderla.
Tel: +34 951 82 01 12