
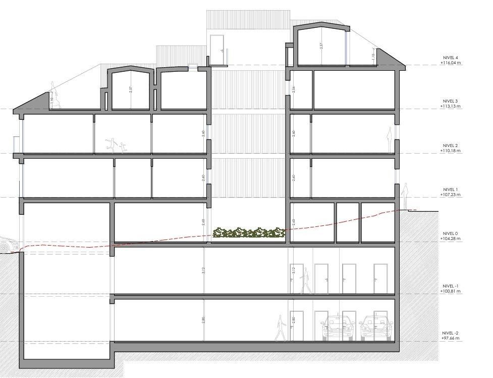
Gran oportunidad de inversión en pleno centro de Arroyo de la Miel, Benalmádena. Se trata de un suelo urbano de 398 m2 en una ubicación privilegiada, rodeado de todos los servicios, a pocos minutos de la playa y perfectamente comunicado.La parcela ya cuenta con un proyecto básico realizado y listo para presentar en el Ayuntamiento, lo que facilita enormemente los trámites y permite ahorrar tiempo y costes en el inicio de la obra.Puntos clave de la inversión:Ubicación premium: zona residencial consolidada con colegios, supermercados, transporte público y una amplia oferta de ocio y restauración.Le informamos que nuestros honorarios de agencia ya están incluidos en el precio de venta, por lo que no tendrá que pagar gastos de gestión ni de asesoramiento inmobiliario.En cumplimiento del Decreto 218/2005 de la Junta de Andalucía, de 11 de octubre, le informamos que los gastos notariales, registrales, de transmisión patrimonial (ITP) y demás gastos inherentes a la venta no están incluidos en el precio.La información proporcionada es solo orientativa, no vinculante y no tiene valor contractual. La oferta está sujeta a errores, cambios de precio, disponibilidad y/o retirada del mercado sin previo aviso. Esta información puede haber sido modificada, pero aún no se ha incorporado. Le sugerimos que contacte con la empresa para obtener la información más reciente y/o confirmar la información aquí proporcionada.Proyecto avanzado: agiliza la obtención de la licencia de obras.Alta rentabilidad: posibilidad de edificar 12 viviendas con una superficie construida aproximada de 2.208,89 m2.Tipologías variadas: pisos de 1, 2 y 3 dormitorios, incluyendo áticos dúplex de diseño exclusivo.Extras muy demandados: 16 plazas de garaje y 16 trasteros, lo que aumenta el atractivo de la promoción.Distribución prevista:1 vivienda de 1 dormitorio.7 viviendas de 2 dormitorios.4 áticos dúplex de 3 dormitorios.16 plazas de garaje.16 trasteros.Una propuesta inmobiliaria con gran proyección en una de las zonas más dinámicas y solicitadas de la Costa del Sol. Invertir en esta parcela significa apostar por un proyecto seguro, rentable y con todas las garantías de éxito.Le informamos que nuestros honorarios de agencia ya están incluidos en el precio de venta, por lo que no tendrá que pagar gastos de gestión ni de asesoramiento inmobiliario.En cumplimiento del Decreto 218/2005 de la Junta de Andalucía, de 11 de octubre, le informamos que los gastos notariales, registrales, de transmisión patrimonial (ITP) y demás gastos inherentes a la venta no están incluidos en el precio.La información proporcionada es solo orientativa, no vinculante y no tiene valor contractual. La oferta está sujeta a errores, cambios de precio, disponibilidad y/o retirada del mercado sin previo aviso. Esta información puede haber sido modificada, pero aún no se ha incorporado. Le sugerimos que contacte con la empresa para obtener la información más reciente y/o confirmar la información aquí proporcionada.~

A veces es buena idea obtener un informe del valor de tu casa incluso si no planeas venderla.
Tel: +34 951 82 01 12