
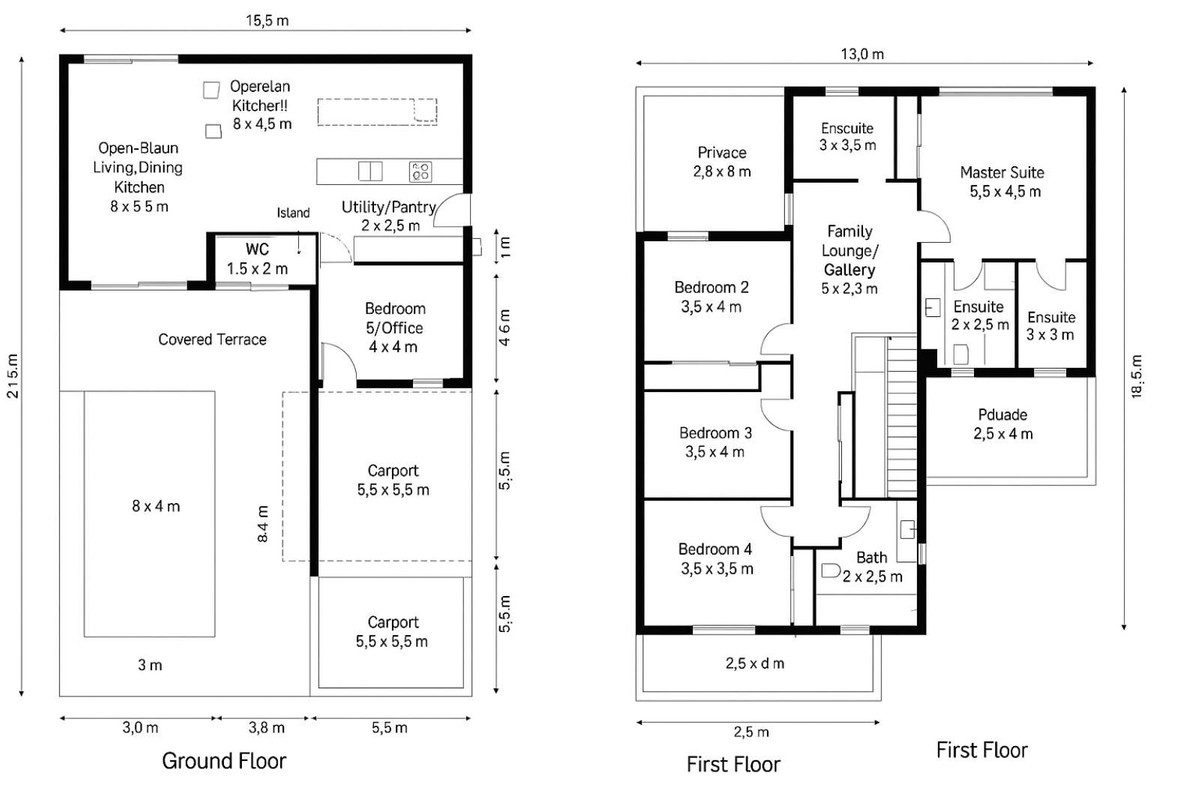
Villa Moderna en Primera Línea de Golf – El Campanario (Proyecto sobre plano) Aproveche la oportunidad de ser propietario de una nueva villa en primera línea de golf, con vistas directas a los fairways de El Campanario. Esta residencia contemporánea sobre plano combina una arquitectura minimalista con detalles naturales y cálidos, junto a interiores de estilo boho-tropical, pensados para un estilo de vida mediterráneo sin esfuerzo.Disfrute de una parcela de aprox. 471 m² / 280–320 m² construidos, con:- 4–5 dormitorios, todos en suite (principal con terraza privada)- Amplio salón-comedor diáfano (8×6 m) con ventanales de suelo a techo- Cocina de diseño con isla y conexión directa a zona de barbacoa/comedor exterior- Diseño moderno de cubierta plana, barandillas de vidrio, piedra natural y detalles en maderaUna oportunidad exclusiva para personalizar su futura vivienda antes de la construcción – uniendo diseño moderno, confort y lujo frente al golf.~

A veces es buena idea obtener un informe del valor de tu casa incluso si no planeas venderla.
Tel: +34 951 82 01 12