
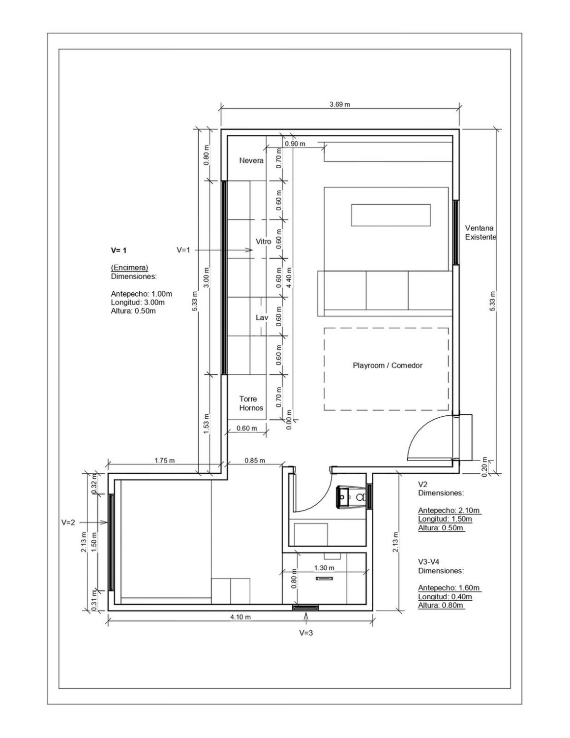
Diseño contemporáneo en plena naturalezaPresentamos, una vivienda unifamiliar ubicada en Arroyo del León, Puerto de la Torre (Málaga). Un proyecto que combina armoniosamente arquitectura moderna, funcionalidad y conexión con el entorno natural.Construida en una sola planta y con una superficie interior de aproximadamente 36 m², esta vivienda ha sido diseñada para ofrecer comodidad, eficiencia y estilo. Su distribución incluye:Cocina abierta con comedor y salón integradosDormitorio principal más un espacio adicional versátilBaño tipo spa con acabados en microcementoIluminación natural y diseño interior con materiales noblesEntorno privilegiado:Situada en una zona residencial tranquila, rodeada de naturaleza y perfectamente conectada con el centro de Málaga y la costa. Ideal para quienes buscan vivir con calma, calidad y estilo, sin renunciar a la cercanía de la ciudad.A solo 9 km del centro de MálagaA 16 km del AeropuertoA 12 km de la Playa de la MisericordiaPróxima a campos de golf, centros de bienestar y zonas de ocioLeón 3 no es solo una casa, es una forma de vivir: luminosa, práctica y en armonía con el paisaje.~

A veces es buena idea obtener un informe del valor de tu casa incluso si no planeas venderla.
Tel: +34 951 82 01 12