Parcela en Hacienda Torrequebrada.

Parcela en Hacienda Torrequebrada.
235.000 €
 Vender 
Hacienda Torrequebrada, Benalmádena, (29639), MALAGA
Foto de  1

Datos del inmueble

ID: 25282840
Ref web: 
Parcela
Tipo de vivienda
0
Habitaciones
0
Baños
0.00
m2
1
Planta (si es piso)
0
Ascensor
Ninguno
Estado de vivienda

Descripción

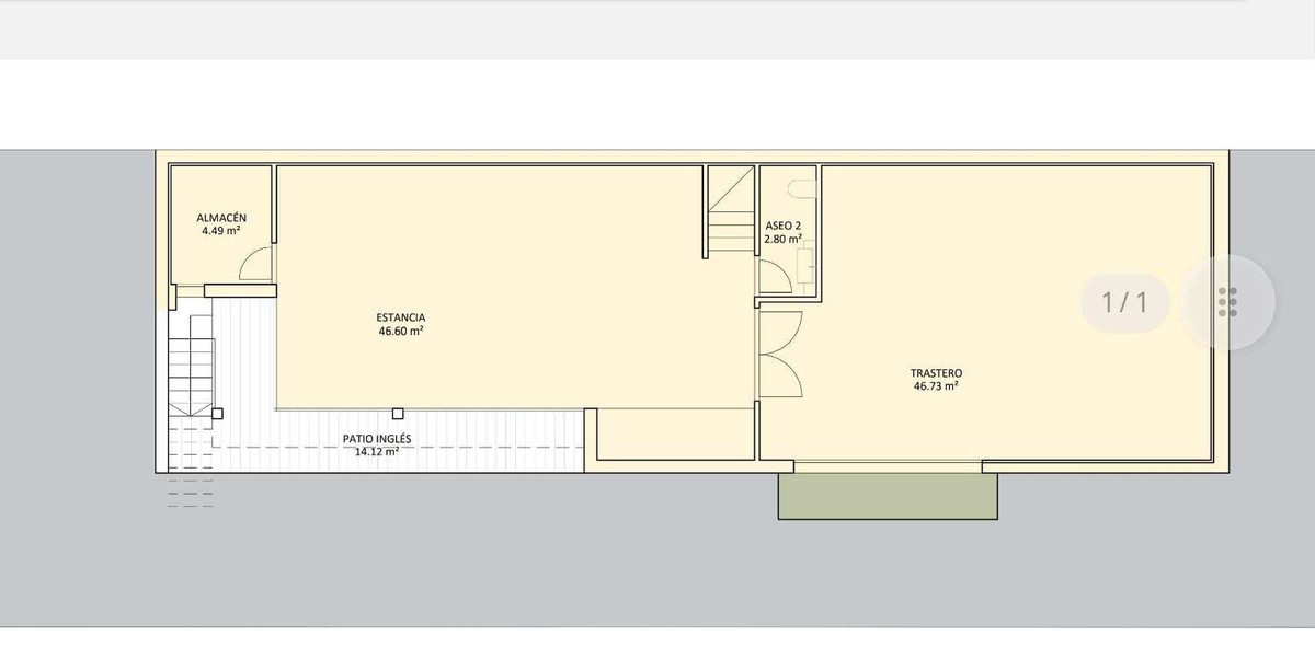
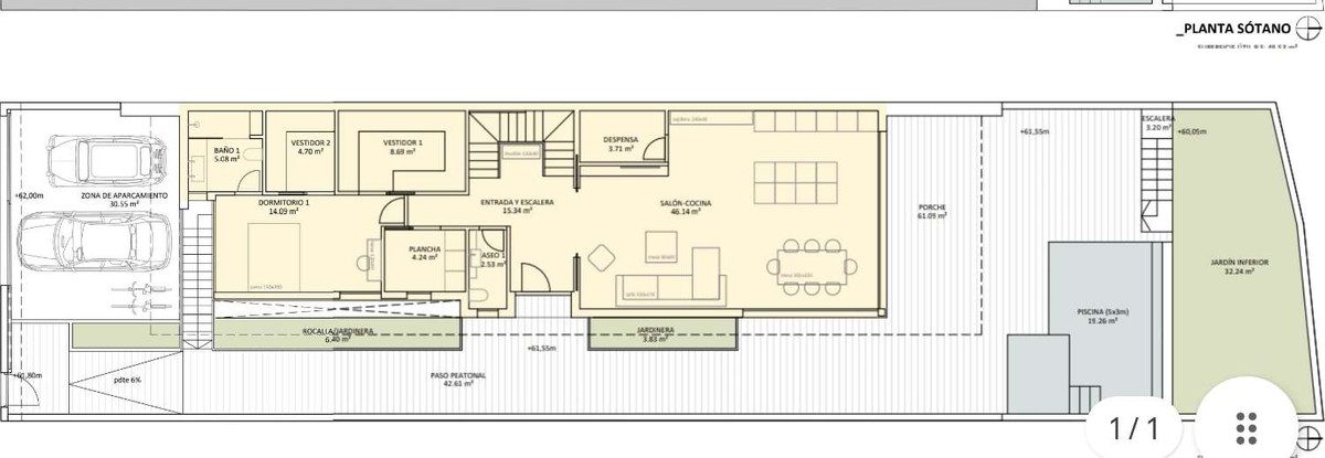
3494-V Oportunidad Única: Suelo Urbanizable con Proyecto de Chalet unifamiliar y Licencia de obra concedida y abonada. Puedes empezar a construir inmediatamente. Estudio geotécnico, Proyecto Básico y Proyecto de Ejecución, visados colegiales, impuestos municipales.Parcela con la mejor orientación, sureste, la fachada principal da a un precioso parque y la fachada trasera tiene vistas despejadas.Te presentamos una excelente oportunidad de inversión en un entorno privilegiado. Este suelo urbanizable cuenta con un proyecto para una vivienda pareada de diseño contemporáneo.Características principales:- Ubicación estratégica: Situado en Alhaurín de la Torre, disfrutarás de la tranquilidad de una zona en expansión, pero con la comodidad de estar cerca de todo. A solo 10 minutos del aeropuerto y 15 minutos del centro de Málaga, tendrás acceso rápido a servicios esenciales, comercios y principales vías de comunicación. Ideal tanto para vivir como para invertir.- Proyecto incluido: Vivienda pareada de 3 dormitorios, 2 vestidores, 3 baños, 1 aseo, cuarto de planchado, alacena, sótano con entrada independiente y con un diseño moderno que maximiza el confort y el uso de espacios, ofreciendo interiores amplios y luminosos.- Estado actual: Redactado proyecto básico y de ejecución con licencia de obras concedida.- Superficie de la parcela: 350,72m² con una vivienda diseñada de 245.68m² construidos y amplios exteriores para disfrutar de un amplio espacio diseñado con piscina, jardín, terrazas……- Uso residencial: Ideal para familias que buscan su hogar perfecto o para inversores que buscan un desarrollo con alta revalorización futura. Este terreno es la opción perfecta para aquellos que desean materializar un proyecto personalizado o aprovechar una inversión inmobiliaria en una zona de crecimiento. ¡No dejes escapar esta oportunidad!En cumplimiento del decreto de la junta de Andalucía 208/2005 del 11 de octubre, se informa a los clientes, que los gastos notariales, registrales, i. t. p, y otros gastos inherentes a la compraventa, no están incluidos en el precio.Los datos expuestos son meramente informativos y no tienen valor contractual, la oferta queda sujeta a errores, cambios de precio, disponibilidad y/o retirada del mercado sin aviso previo.~

1
Diego Calvelo
951 82 01 12
Guía del vendedor en Marbella // Seller guide on Marbella

Guía: Los 7 consejos que todo vendedor tiene que saber para vender en Marbella y no perder dinero.

Informe gratuito de tu vivienda

A veces es buena idea obtener un informe del valor de tu casa incluso si no planeas venderla.

En menos de 24h te contactará un agente para ayudarte con lo que necesites

Tel: +34 951 82 01 12

Best Inmobiliaria Marbella
Resumen de privacidad

Esta web utiliza cookies para que podamos ofrecerte la mejor experiencia de usuario posible. La información de las cookies se almacena en tu navegador y realiza funciones tales como reconocerte cuando vuelves a nuestra web o ayudar a nuestro equipo a comprender qué secciones de la web encuentras más interesantes y útiles.