
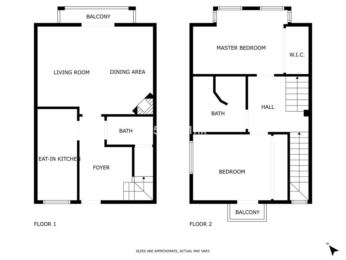
Se vende precioso dúplex reformado en una tranquila zona de Las Lagunas, con la comodidad de no tener vecinos ni arriba ni abajo, solo colindantes a ambos lados. La vivienda, originalmente de tres dormitorios, ha sido redistribuida para ofrecer dos dormitorios muy amplios y un baño grande en la planta superior, ideal para mayor confort. En la planta baja encontramos un salón acogedor con chimenea, cocina independiente, aseo de cortesía y aire acondicionado. La propiedad ha sido reformada por completo, lista para entrar a vivir, con buen gusto y materiales de calidad. Además de tener posibilidad de hacer un solárium, para hacer una habitación extra, despacho, o simplemente terraza.Ideal como primera vivienda o inversión, en una zona bien comunicada y rodeada de todos los servicios. ¡No pierdas esta oportunidad!~

A veces es buena idea obtener un informe del valor de tu casa incluso si no planeas venderla.
Tel: +34 951 82 01 12