
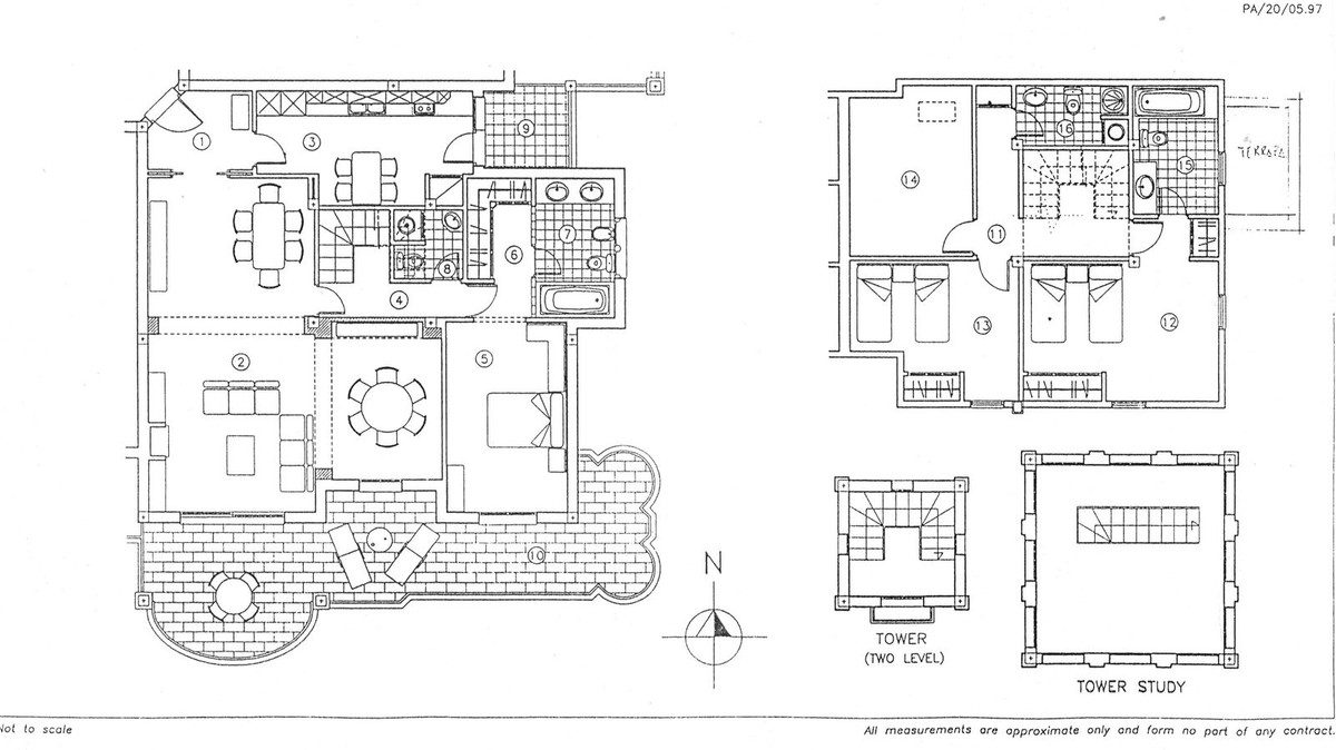
Bienvenido a la EMBLEMATICA TORRE. Esta hermosa, impresionante y única propiedad en Mijas Golf está a la venta. La Torre, ubicada en el edificio más hermoso de Puebla Aida, conocido como El Castillo, es una propiedad única. Esta propiedad cuenta con 4 dormitorios y tres baños, dos de ellos en suite. La planta baja consta de una amplia cocina con lavadero independiente, un amplio salón con acceso a una terraza orientada al sur con espectaculares vistas al mar, las montañas y la piscina, y un dormitorio principal con baño en suite y vestidor. Subiendo a la primera planta encontrará tres dormitorios y dos baños, uno de ellos en suite. En la primera planta encontrará las escaleras que conducen a la icónica torre, donde disfrutará de las vistas panorámicas más impresionantes.Esta propiedad se encuentra en el complejo más hermoso que encontrará. Consta de 4 piscinas, encantadoras calles adoquinadas, callejones, fuentes y, dondequiera que mire, encontrará algo diferente.~

A veces es buena idea obtener un informe del valor de tu casa incluso si no planeas venderla.
Tel: +34 951 82 01 12