Chalet en Sotogrande - Alto.

Chalet en Sotogrande - Alto.
 Vender 
Sotogrande - Alto, Sotogrande, (), CADIZ
975000€
Foto de  1

Datos del inmueble

ID: 24399704
Chalet
Tipo de vivienda
4
Habitaciones
4
Baños
434.00
m2
3
Planta (si es piso)
0
Ascensor
Buen estado
Estado de vivienda

Descripción

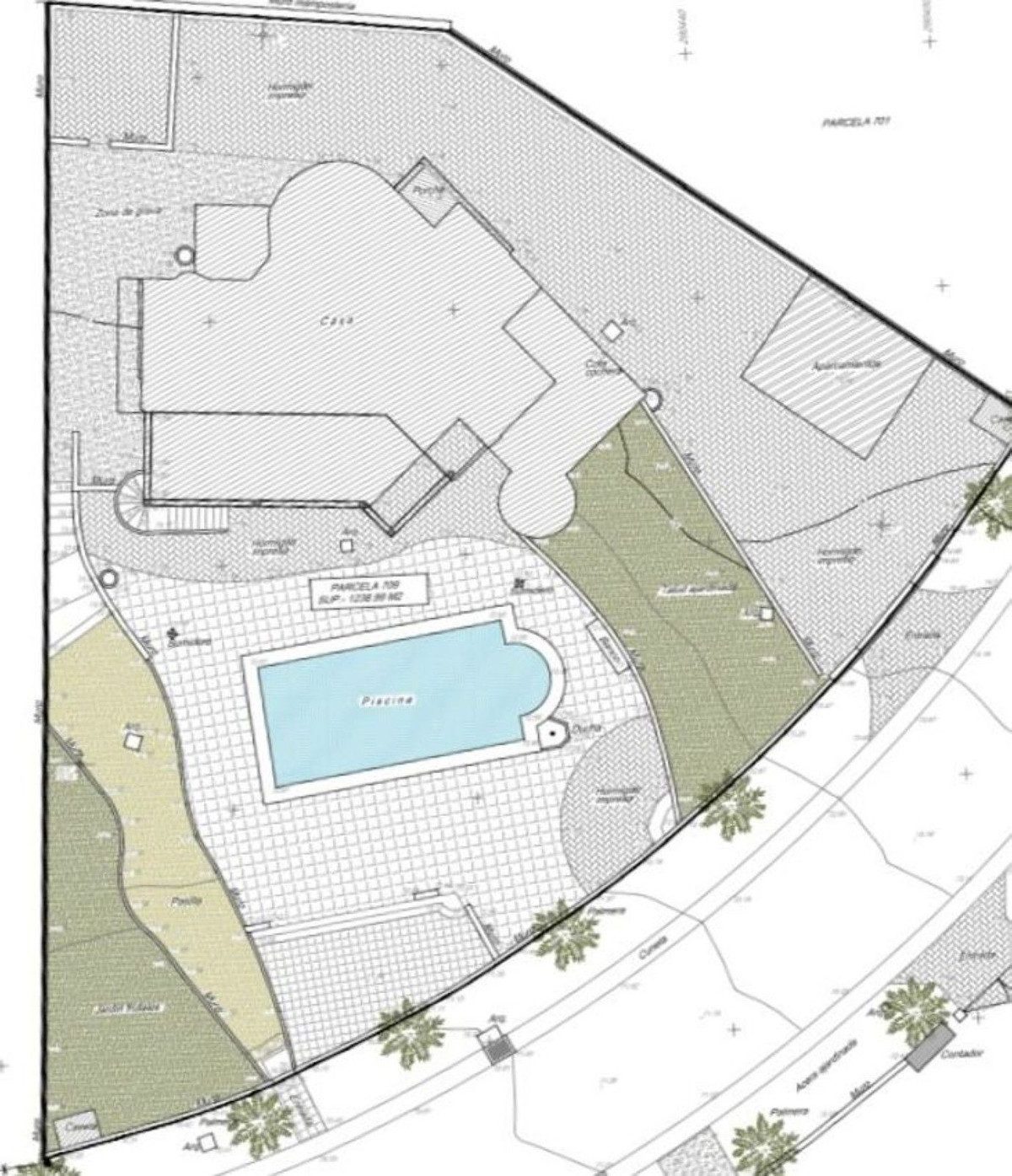
Le presentamos una amplia parcela con orientación sur en la exclusiva y privilegiada zona de Sotogrande Alto. Esta villa es mucho más que una propiedad, es un lienzo en blanco esperando que le des el toque personal que siempre has soñado. Con un entorno inigualable, es el lugar perfecto que te invita a darle tu toque personal y convertirla en una propiedad de lujo a tu medida, ya sea para disfrutarla como residencia familiar o como una inversión de futuro.Nada más entrar, serás recibido por un elegante hall con vidrieras que te da paso a un salón luminoso, lleno de posibilidades. Desde aquí, podrás acceder a una amplia terraza que se conecta directamente con un hermoso y amplio jardín, con zonas ajardinadas que invitan a la tranquilidad y una zona de barbacoa perfecta para momentos de ocio al aire libre. Su piscina privada se convierte en el centro de las actividades veraniegas, ofreciéndote la posibilidad de relajarte en un ambiente exclusivo. Imagina relajarte en este espacio mientras disfrutas de la tranquilidad y la belleza natural que te rodea. La planta principal incluye una cocina con alacena, perfecta para adaptarla a tus necesidades, un aseo para tus visitas, un despacho privado ideal para trabajar en casa, y acceso directo al garaje, lo que te garantiza comodidad y funcionalidad en tu día a día.Al subir a la planta superior, descubrirás un luminoso dormitorio principal que se convertirá en tu refugio personal. Con un amplio vestidor y un baño en suite, este espacio es ideal para relajarte después de un largo día. La amplia terraza del dormitorio principal ofrece unas vistas espectaculares de Sotogrande, un rincón privilegiado donde disfrutar de momentos de paz y belleza. En esta planta, también encontrarás otra terraza, dos dormitorios adicionales y un baño completo, pensados para ofrecer máxima comodidad.En la planta baja, la villa ofrece una casa de invitados independiente, con cocina propia, baño, dos habitaciones y un amplio espacio de almacenaje. Esta zona, llena de luz natural, conecta directamente con el jardín y la piscina, garantizando privacidad y confort para tus invitados o familiares. Además, la villa dispone de una cochera en la entrada y un amplio garaje privado, lo que te ofrece la comodidad y seguridad que mereces.Si buscas una propiedad con un gran potencial para reformar y adaptarla a tus necesidades, esta villa es la elección perfecta. Con una ubicación inmejorable, amplios espacios y un diseño que te invita a crear, esta villa en Sotogrande Alto representa una inversión única y valiosa. No dejes pasar la oportunidad de convertir este maravilloso lugar en el hogar que siempre has deseado. ¡Esperamos mostrarte tu futuro hogar!Oferta sujeta a errores, cambios de precio o cualquier otra modificación sin previo aviso. El precio no incluye impuestos ni gastos de transmisión. Incluidos los honorarios de agencia.~

1
Diego Calvelo
951 82 01 12
Guía del vendedor en Marbella // Seller guide on Marbella

Guía: Los 7 consejos que todo vendedor tiene que saber para vender en Marbella y no perder dinero.

Informe gratuito de tu vivienda

A veces es buena idea obtener un informe del valor de tu casa incluso si no planeas venderla.

En menos de 24h te contactará un agente para ayudarte con lo que necesites

Tel: +34 951 82 01 12

Best Inmobiliaria Marbella
Resumen de privacidad

Esta web utiliza cookies para que podamos ofrecerte la mejor experiencia de usuario posible. La información de las cookies se almacena en tu navegador y realiza funciones tales como reconocerte cuando vuelves a nuestra web o ayudar a nuestro equipo a comprender qué secciones de la web encuentras más interesantes y útiles.