
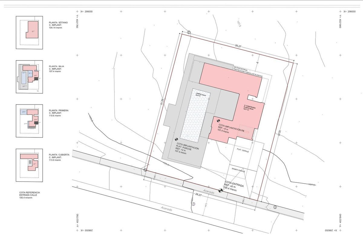
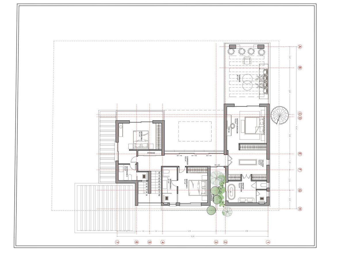
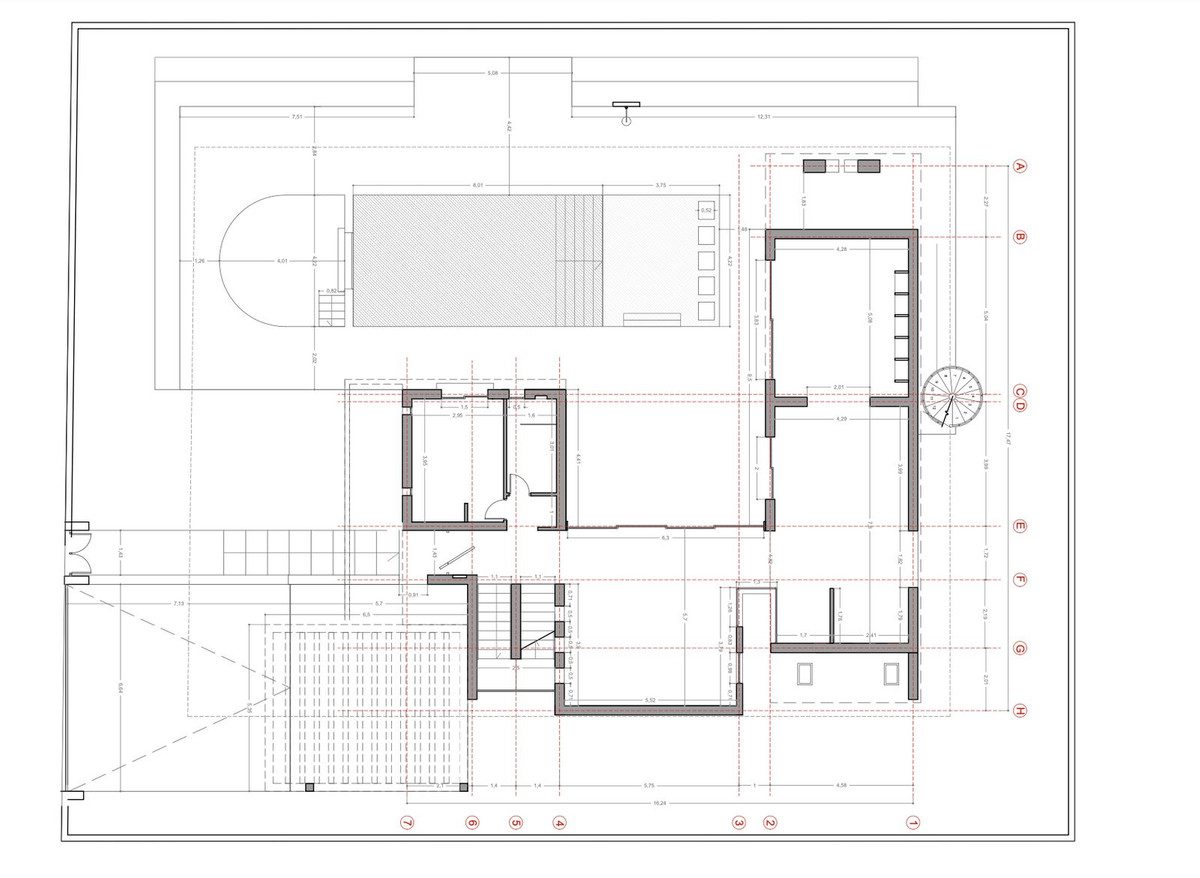
Parcela edificable con proyecto en licencia en la preciosa zona costera conocida como la Paloma.La licencia concedida en noviembre de 2023Esta preciosa parcela orientada al sureste tiene preciosas vistas al mar y está a menos de 500 metros de la playa. La edificabilidad del terreno es de un generoso 33%, por lo que además de los 280 metros cuadrados que se pueden construir sobre rasante, también hay un enorme sótano, que, debido a la inclinación del terreno, se puede construir con importantes recursos naturales. luz.La Costa del Sol occidental se está convirtiendo en el lugar elegido por aquellos compradores exigentes que desean mudarse a la impresionante costa sur de España pero que buscan una experiencia más auténtica y relajante. Dentro de la provincia de Málaga, pero muy cerca del límite con la provincia de Cádiz, esta parte de la Costa del Sol se beneficia de su mayor proximidad al Océano Atlántico, lo que hace que sus playas sean mucho más atractivas y sus aguas marinas mucho más fresco.~

A veces es buena idea obtener un informe del valor de tu casa incluso si no planeas venderla.
Tel: +34 951 82 01 12