Parcela en Valle Romano.

Parcela en Valle Romano.
 Vender 
Valle Romano, Estepona, (29693), MALAGA
275000€
Foto de  1

Datos del inmueble

ID: 23211720
Parcela
Tipo de vivienda
0
Habitaciones
0
Baños
0.00
m2
0
Planta (si es piso)
0
Ascensor
Buen estado
Estado de vivienda

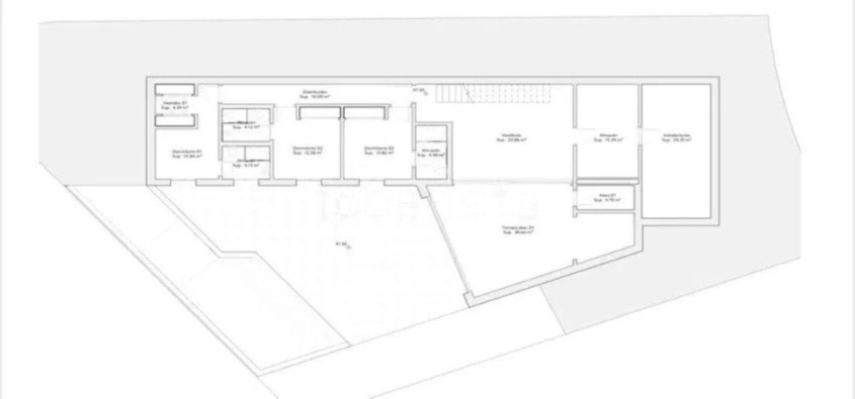
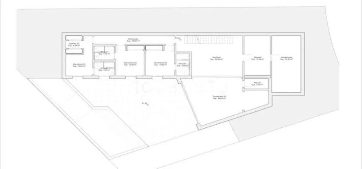
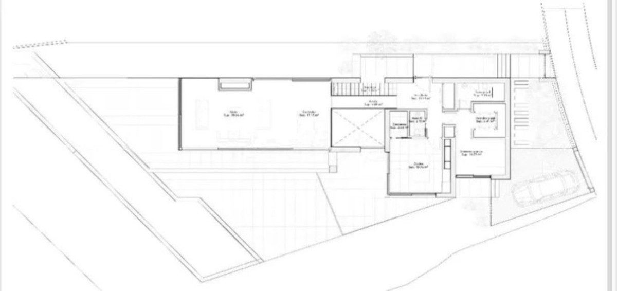
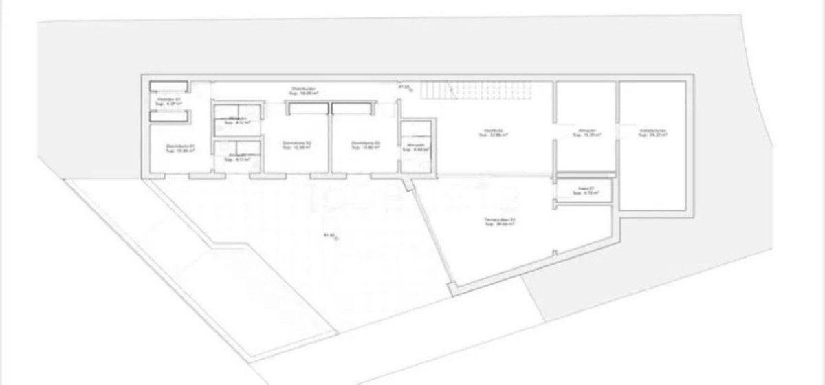
Descripción

Terreno Urbano, Valle Romano, Costa del Sol.Jardin/Terreno 627 m².Posición : Primera línea de Golf, Cerca de Golf, Cerca de Colegios, Urbanización.Orientación : Sur, Suroeste.Estado : Excelente.Piscina : Sitio para Piscina.Vistas : Mar, Golf.Jardin : Privado.Categoría : Golf, Reventa.~

1
Diego Calvelo
951 82 01 12
Guía del vendedor en Marbella // Seller guide on Marbella

Guía: Los 7 consejos que todo vendedor tiene que saber para vender en Marbella y no perder dinero.

Informe gratuito de tu vivienda

A veces es buena idea obtener un informe del valor de tu casa incluso si no planeas venderla.

En menos de 24h te contactará un agente para ayudarte con lo que necesites

Tel: +34 951 82 01 12

Best Inmobiliaria Marbella
Resumen de privacidad

Esta web utiliza cookies para que podamos ofrecerte la mejor experiencia de usuario posible. La información de las cookies se almacena en tu navegador y realiza funciones tales como reconocerte cuando vuelves a nuestra web o ayudar a nuestro equipo a comprender qué secciones de la web encuentras más interesantes y útiles.