
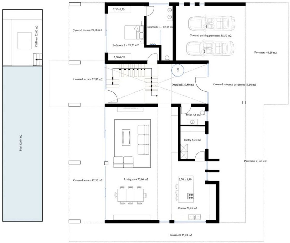
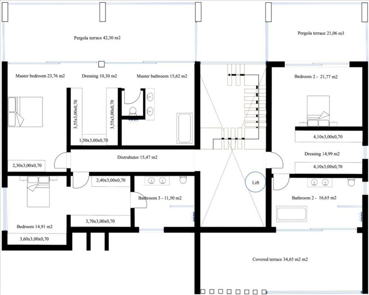
VILLA DE LUJO CONTEMPORANEA CON VISTAS PANORAMICAS EN MONTE MAYOR – BENAHAVIS – Totalmente construida en 3 plantas con una superficie total construida de 1.334,00 m2Esta villa de lujo contemporánea simplemente lo tiene todo … se construirá en 2 o 3 plantas, a elección del cliente, en una parcela de aprox 7.825 m2 en Monte Mayor, Benahavis una urbanización de lujo en una zona verde.Planta baja: hall de doble altura con escalera, ascensor neumático y aseo de invitados, un gran salón/comedor que da a la gran terraza con piscina y zona chill-out, cocina totalmente equipada con despensa. También hay un dormitorio con baño en suite en la planta baja.Primera planta: Dormitorio principal con baño en suite con 2 vestidores y 2 terrazas privadas En esta planta, tenemos también otros 2 dormitorios con baño en suite y vestidor. Uno de los dormitorios tiene acceso a la terraza.Sotano; hall, garaje, aseo, sauna, sala de juegos, trastero y sala de billar tecnico.¡Tiempo de construcción 12-14 meses después de las licencias!Las fotos de los baños y cocinas son ejemplos, de cómo podríamos construir esto para usted, la decisión final será suya. Ejemplo de algunas de las especificaciones,- Pavimentos interiores y exteriores de GRESPANIA 600×600 – 800×800 – 1200×1200 (Color y tamaño a elegir)- Paredes de baños con placas de COVERLAM (GRESPANIA) 2700X1200 (Color a elegir)- Baños de ROCA o similar- Cocina con puertas de acero revestidas con COVERLAM e isla de cocina de COVERLAM- Aerotermia/aire acondicionado- Suelo radiante eléctrico en los baños- Calefacción hidráulica por suelo radiante en planta baja y primer piso – Ventanas hasta el techo con riel hundido, 5+5/cámaras/6+6- Puertas interiores altas y de 1 metro de ancho- Puerta pivotante de techo alto y 1,50 de ancho- Cocina totalmente equipada- Electrodomésticos Bosch o similar- 20 paneles solares- 2 baterías de 10 kW- Cargador de coche- Domótica- Persianas eléctricas en salón y cocina- Luces exteriores de sol a sol- Luces LED en entrada- Luces LED en el techo de toda la villa- Piscina climatizadaOpcional- Cocina completa de COVERLAM con puertas de aluminio (Precio a petición)- Sótano completo/garaje/sala de juegos, dormitorio extra y baño (Precio a consultar)Somos una empresa constructora, Llave en Mano, que puede diseñar y construir cualquier posibilidad que se le ocurra. Si no ve un diseño nuestro que le guste diseñamos una villa totalmente nueva para usted según sus ideas y aportaciones.Aunque preferimos construir edificios ecológicos, podemos construir desde construcciones tradicionales hasta construcciones ecológicas todo depende de usted.INCLUYE- Parcela- Proyecto básico y técnico de arquitectos- Licencias de obra- Construcción completa~

A veces es buena idea obtener un informe del valor de tu casa incluso si no planeas venderla.
Tel: +34 951 82 01 12