Chalet en South of spain.

Chalet en South of spain.
850.000 €
 Vender 
South of spain, Colmenar, (29170), MALAGA
Foto de  1

Datos del inmueble

ID: 23206084
Ref web: 
Chalet
Tipo de vivienda
3
Habitaciones
2
Baños
183.00
m2
2
Planta (si es piso)
1
Ascensor
Buen estado
Estado de vivienda

Descripción

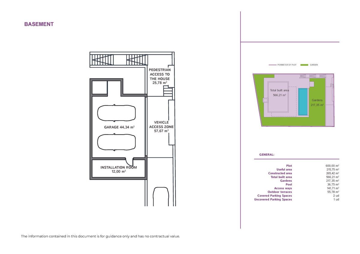
Conecte con la naturaleza en estos preciosos chalets de 3 plantas a las afueras de Coín. Su gran ventanal de suelo a techo, en planta baja, te hace confundir el lugar en el que estas; no se sabe si estás dentro o fuera, si estás en el salón o la terraza, porque es una sensación de continuidad total. En cada espacio se siente la conexión con el entorno natural, el jardín, la terraza, el paisaje y, al mismo tiempo, el valle luminoso que te observa y al que tú también puedes mirar.Su diseño está inspirado en la transparencia de un río cristalino, que te hace percibir en cada instante la belleza y conexión con el entorno natural. Con su forma cúbica y modular, conseguimos grandes espacios abiertos que nos permiten vivir con relajación y comodidad.El Sótano se distribuye en: zona de acceso de vehículos y peatonal a la vivienda, zona de aparcamiento, cuarto de instalaciones y ascensor.La Planta Baja se distribuye en: salón, cocina-comedor, aseo, terraza cubierta y piscina.La Planta Alta se distribuye en: Dormitorio 1 con baño ensuite, vestidor y terraza cubierta; Dormitorio 2 armario y terraza cubierta; Dormitorio 3 con armario y terraza cubierta; Baño común.El jardín se ha diseñado con árboles y plantas decorativas en la zona de la parcela que no se ha construido.El diseño del chalet se ajustará a gusto del cliente; la ubicación y su construcción se realizará en el lugar y parcela escogida por el cliente y, los elementos de calidad serán elegidos por el cliente.~

1
Diego Calvelo
951 82 01 12
Guía del vendedor en Marbella // Seller guide on Marbella

Guía: Los 7 consejos que todo vendedor tiene que saber para vender en Marbella y no perder dinero.

Informe gratuito de tu vivienda

A veces es buena idea obtener un informe del valor de tu casa incluso si no planeas venderla.

En menos de 24h te contactará un agente para ayudarte con lo que necesites

Tel: +34 951 82 01 12

Best Inmobiliaria Marbella
Resumen de privacidad

Esta web utiliza cookies para que podamos ofrecerte la mejor experiencia de usuario posible. La información de las cookies se almacena en tu navegador y realiza funciones tales como reconocerte cuando vuelves a nuestra web o ayudar a nuestro equipo a comprender qué secciones de la web encuentras más interesantes y útiles.