
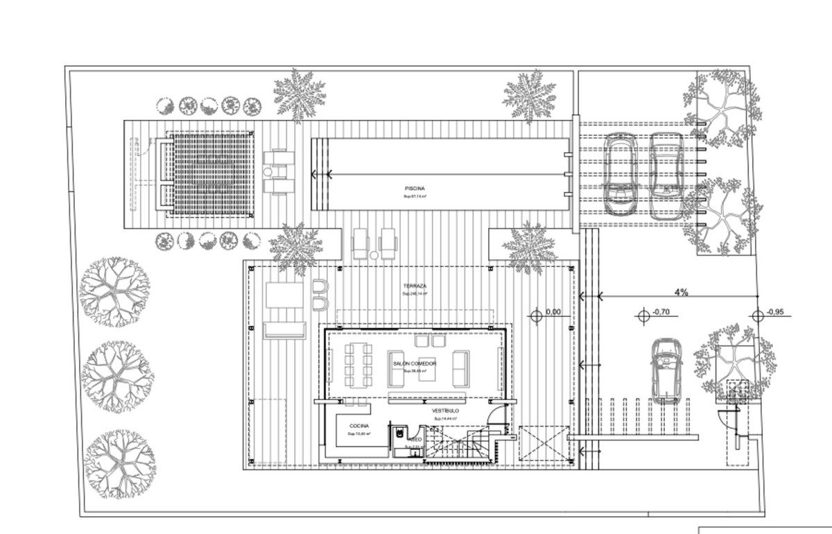
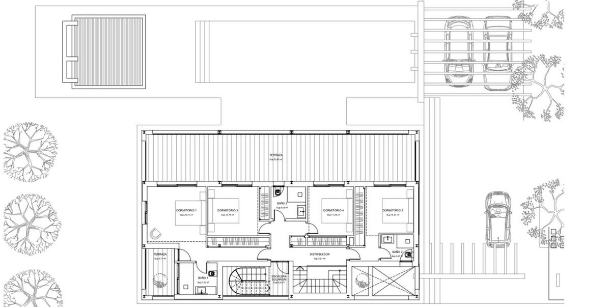
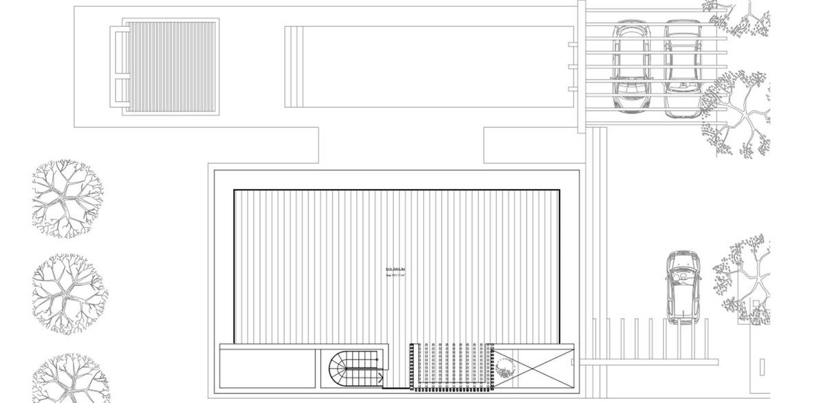
No deje pasar esta oportunidad!Villa contemporánea situada a unos pasos de la playa,.La vivienda esta bajo construcción ahora y se entregará en Octubre 2025Vistas panorámicas desde el solarium.Parcela de 973 m2 con sol todo el día.La vivienda se distribuye sobre 2 plantas de la siguiente manera:Planta baja con salón / comedor el cual tiene acceso directo a la terraza cubierta y zona de piscina.Cocina abierta, un lavadero independiente y 1 aseo.En la segunda planta tienes 4 dormitorios y 3 cuartos de baño. Todos tienen salida directa a la terraza.Recomendamos visitar esta vivienda.~

A veces es buena idea obtener un informe del valor de tu casa incluso si no planeas venderla.
Tel: +34 951 82 01 12