
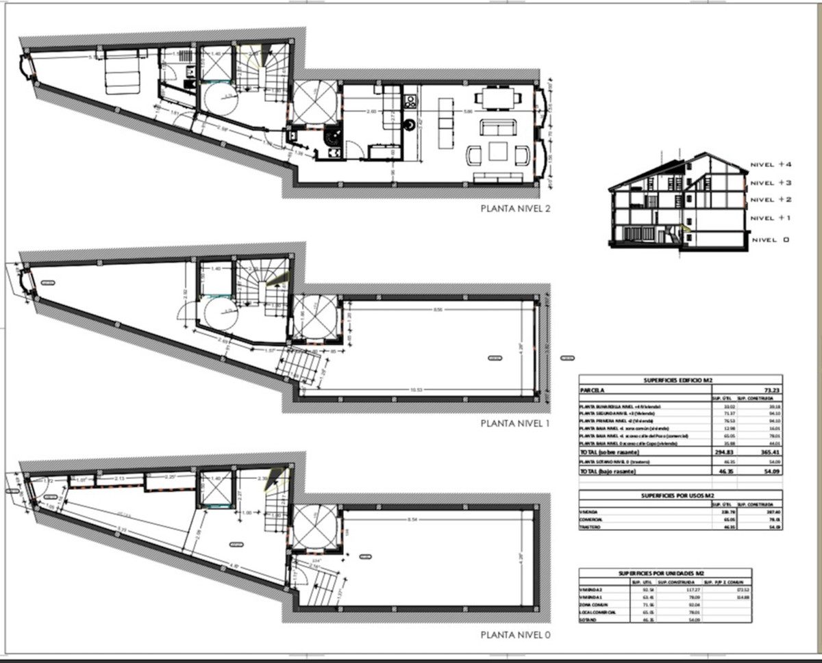
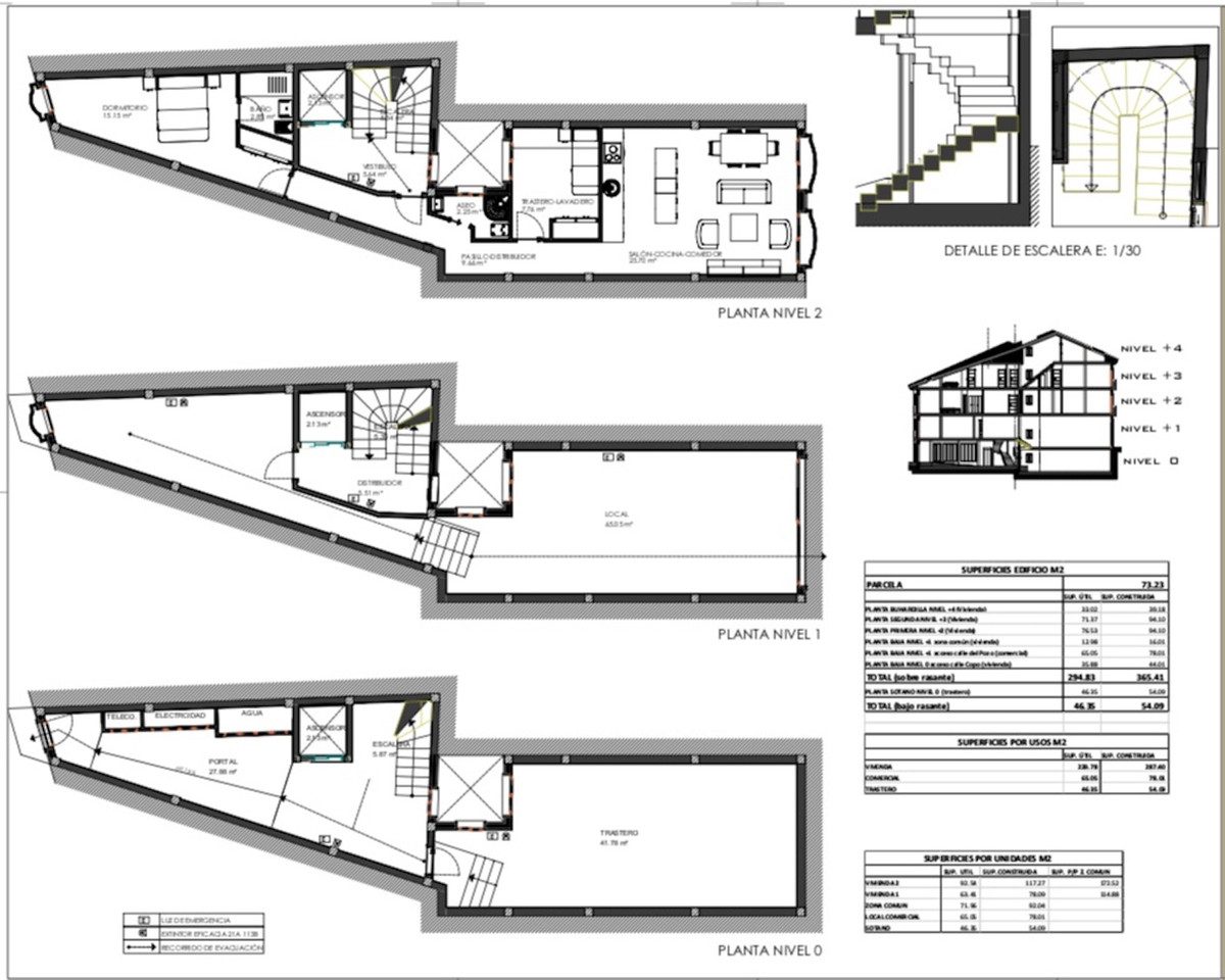
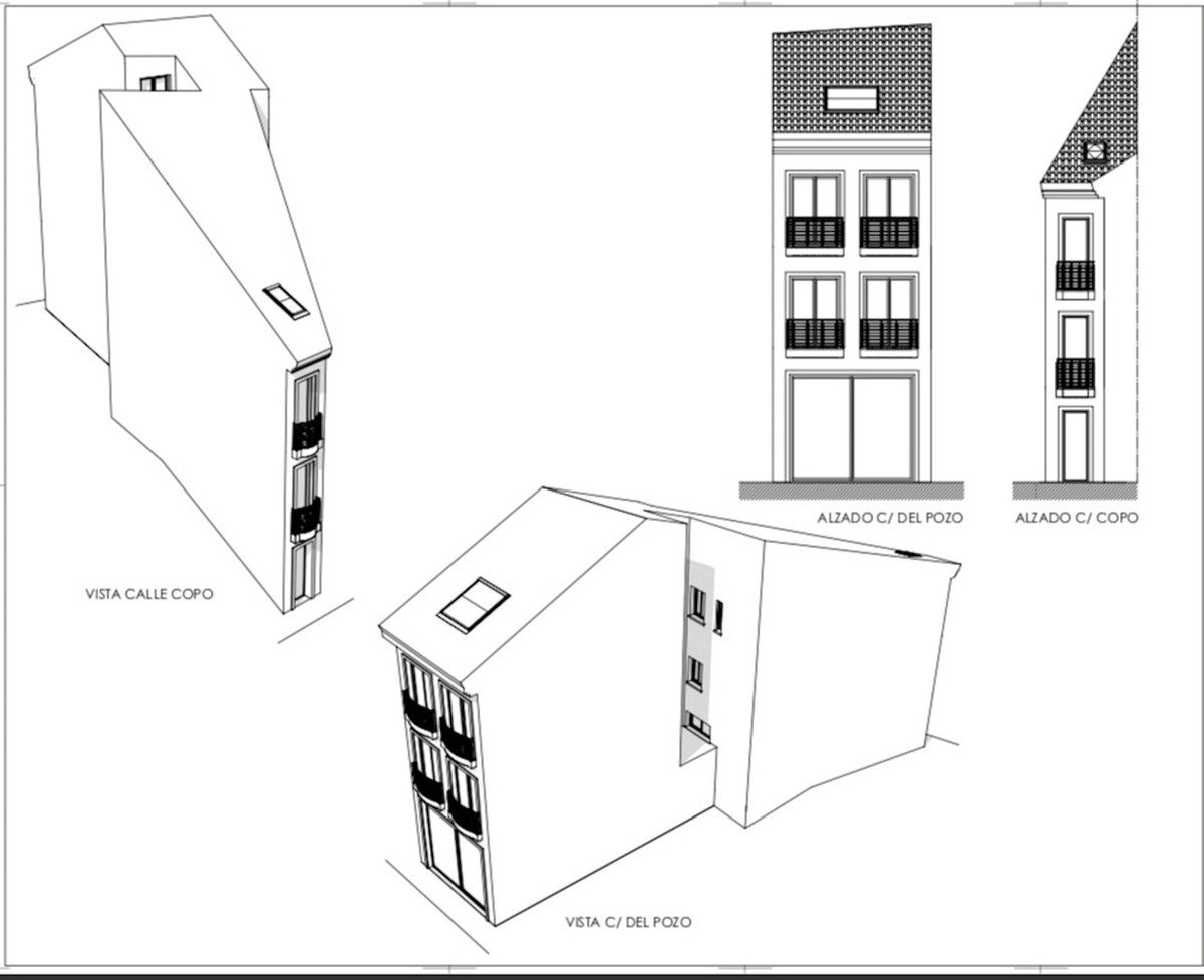
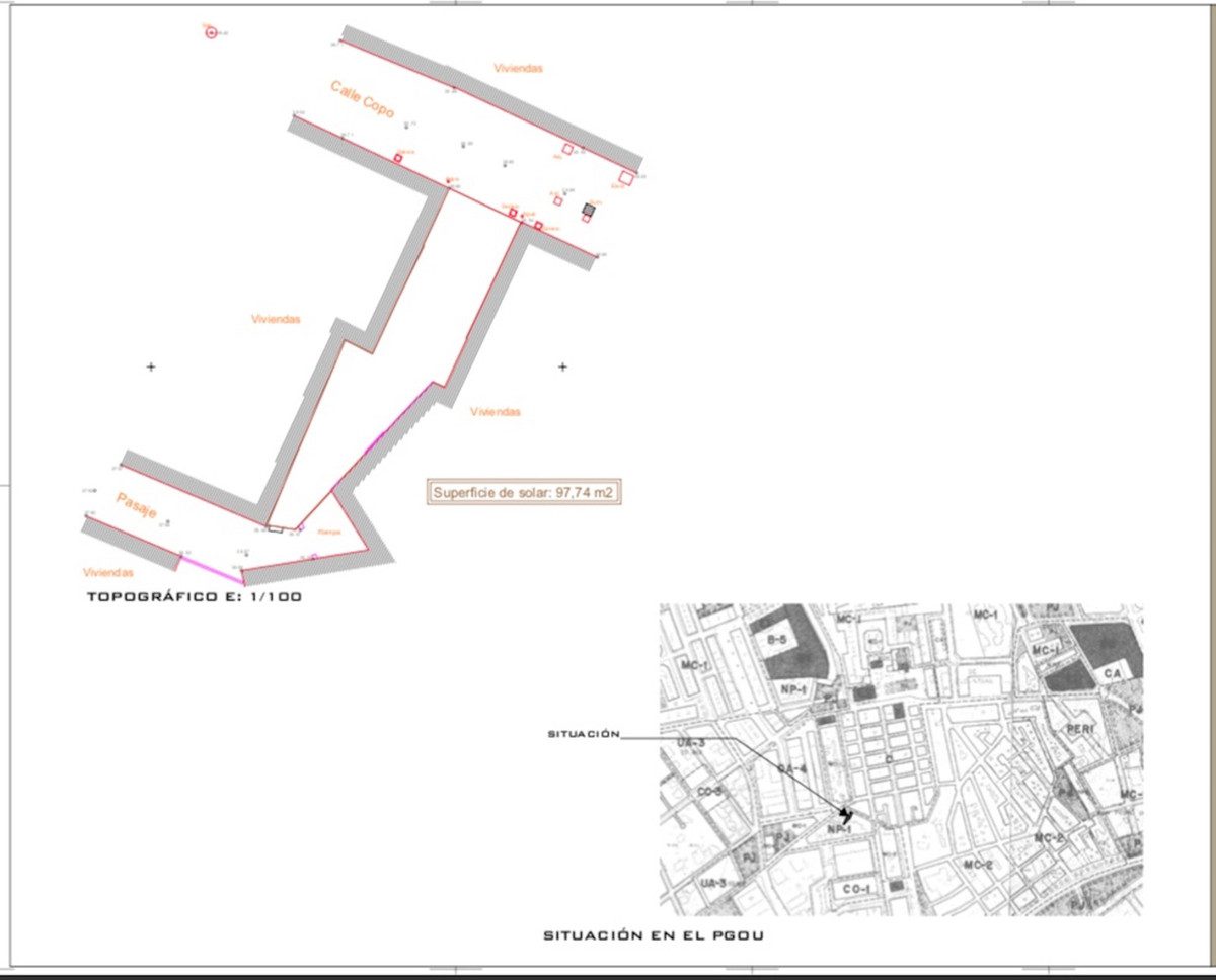
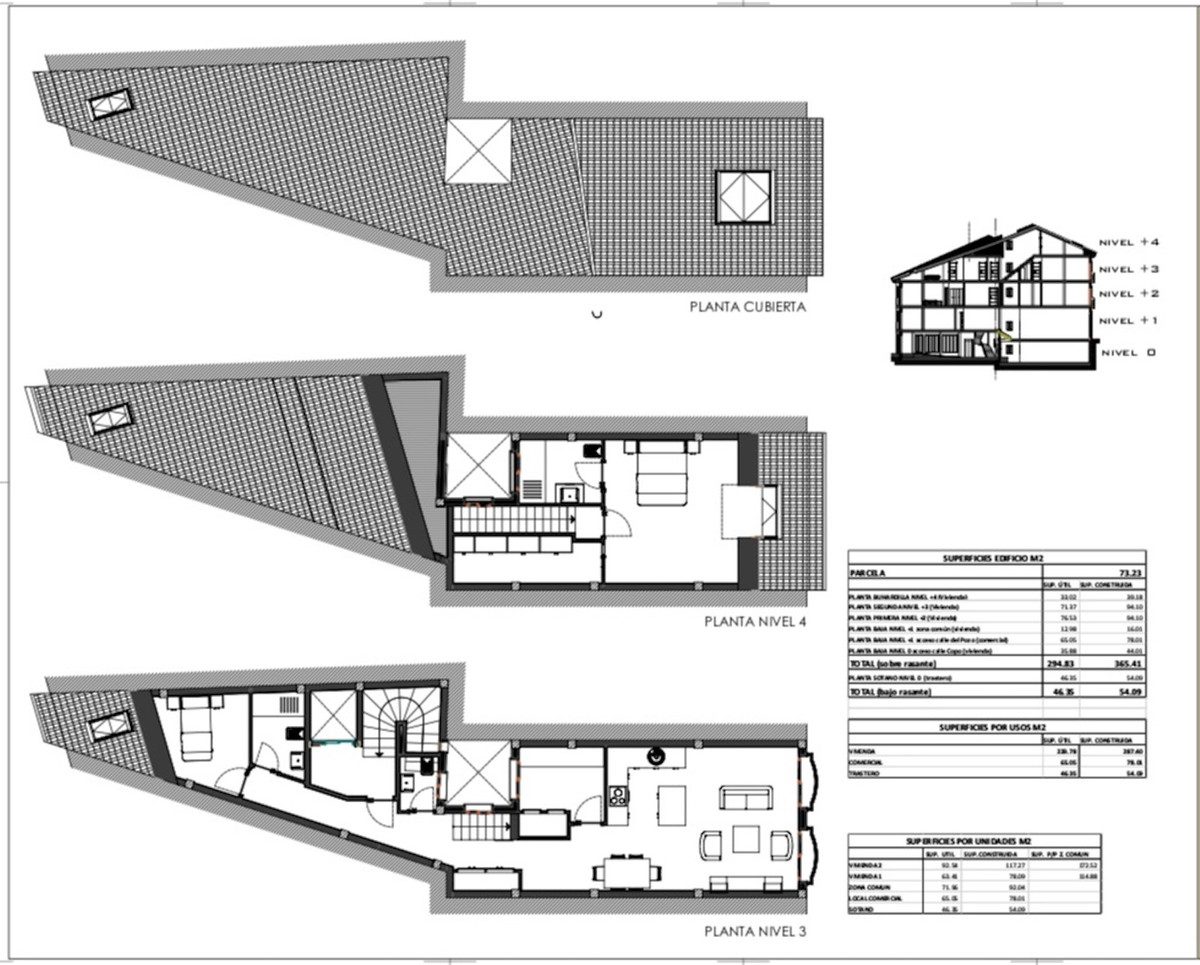
Estamos encantados de ofrecer a la venta este pequeño y deseable proyecto en el centro de la ciudad de San Pedro Alcántara con todas las licencias aprobadas.La parcela tiene 98m2 y previsto construir edificio de 3 plantas con sótano en total podría construir 365,41m2. Esta parcela se puede convertir en edificio de 3 plantas con local comercial 78,01m2 en planta baja con acceso a la terraza, sótano 54,09m2, primera planta seria apartamento de 2 dormitorios 78,09m2, segundo planta ático dúplex de 3 dormitorios 117,27m2 con amplio terraza, la escalera y zona comunitaria seria 92,04m2 Terreno Urbano, San Pedro de Alcántara, Costa del Sol.Jardin/Terreno 98 m².Posición : Ciudad, Cerca del Mar, Cerca de Colegios.Orientación : Sureste.Vistas : Urbanas.Categoría : Urge venta, Con Permiso de Planificación.~

A veces es buena idea obtener un informe del valor de tu casa incluso si no planeas venderla.
Tel: +34 951 82 01 12